626 Rossmoor Circle
Melbourne, FL 32940
MLS #: 1071354
Property Type: Residential
Beds: 3
Full Baths: 2.00
List Date: 03-07-2026
Year Built: 1990
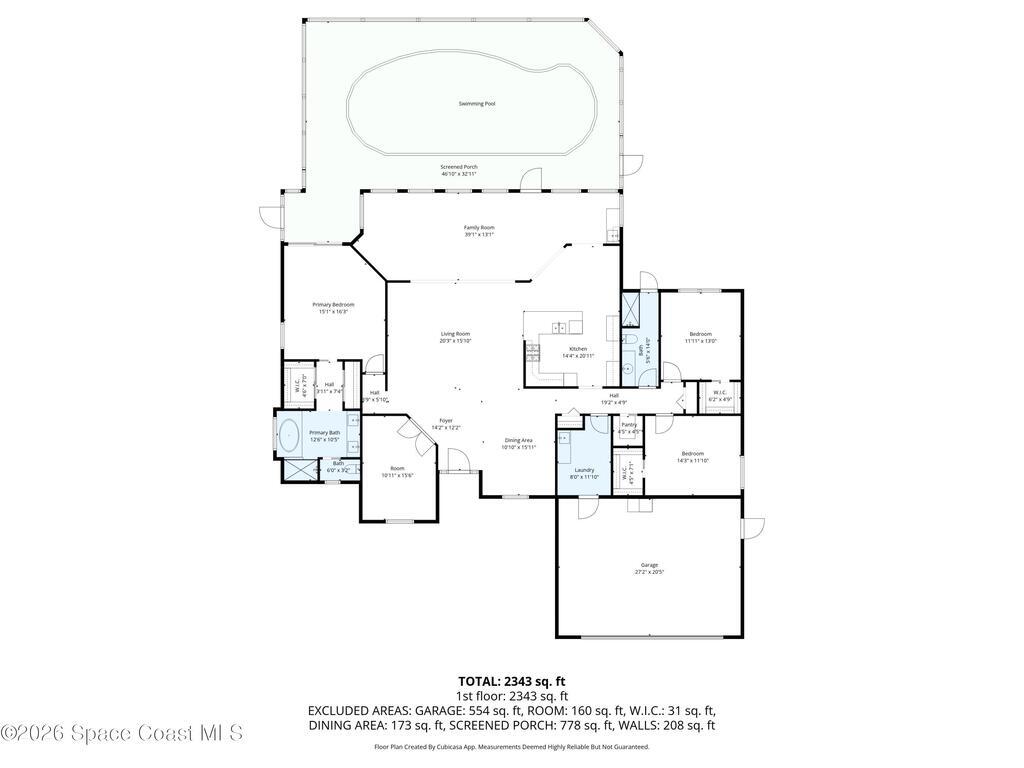
2,739 Sq. Ft.
Property Description
Investor opportunity in the desirable Suntree area! This spacious 3 Bedroom offers a large flex and pool. Sitting on a large 0.32-acre lot providing an excellent canvas for renovation and value-add potential. Curved driveway for additional parking. This property is ready for updates and ideal for investors, flippers, or buyers looking to customize a home in a highly sought-after location.Located in the established Suntree community near some of the Space Coast's best golf courses and country clubs, just minutes from shopping, dining, and entertainment at The Avenue Viera.With its prime central location, strong resale potential, and proximity to golf, shopping, dining, and top-rated schools, this property presents a compelling investment opportunity in one of Melbourne's most desirable area*Home requires extensive repairs and updating. Buyers should conduct their own due diligence. Property sold as-is.
Street
Rossmoor Circle
County
Brevard
Listing Status
Active
Tax Year
2023
Pool
Yes
Private Pool
Yes
Pool Description
In Ground, Screen Enclosure
Utilities
Cable Available
Waterfront
Yes
Water Type
ZipCode
Subdivision
Suntree PUD Stage 5 Tract 55
Construction
Concrete
Tax Amount
$8,176.64
Furnishings
Unfurnished
Parking
Attached, Circular Driveway
HOA Dues
$0.00
626 Rossmoor CircleMelbourne, FL 32940
This listing is courtesy of One Sotheby's International.

Real Estate and Luxury homes in Melbourne Beach, Merritt Island, Cocoa Beach, Lansing Island, Tortoise Island, Vero Beach, Barefoot Bay, Cape Canaveral, Cocoa, Grant Valkaria, Indialantic, Indian Harbour Beach, Malabar, Melbourne, Palm Bay, Rockledge, Satellite Beach, Titusville, West Melbourne and surrounding areas in Brevard and Central Florida.
Property Listing Data contained within this site is the property of Brevard MLS and is provided for consumers looking to purchase real estate. Any other use is prohibited. We are not responsible for errors and omissions on this web site. All information contained herein should be deemed reliable but not guaranteed, all representations are approximate, and individual verification is recommended.