1280 Highland Avenue
Melbourne, FL 32935
MLS #: 1071473
Property Type: Residential
Beds: 3
Full Baths: 2.00
List Date: 03-10-2026
Year Built: 1930
1,998 Sq. Ft.
Property Description
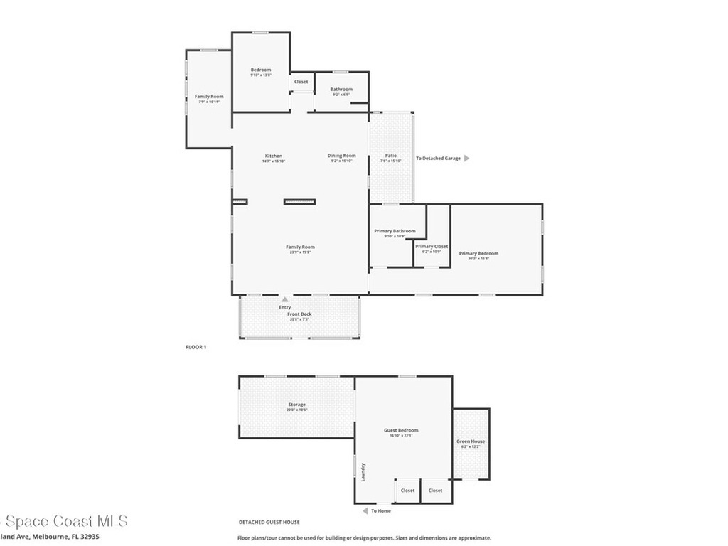
Welcome to Twin Oaks, a truly one-of-a-kind historic gem in the heart of Eau Gallie's sought-after Sunny Point neighborhood. One of the first homes built in the area, this property is rich in character and charm. The main house is 1, 584 sq ft with 2 beds/ 2 baths. The bright, open floor plan is filled with natural light from beautiful windows, while real hardwood floors run throughout. Enjoy your morning coffee on the screened front porch and unwind on the screened back lanai in the evenings. The detached 400 sq ft cottage provides incredible flexibility -- perfect for a home office or guest suite. If used as a second home or an investment, the property offers excellent income-producing potential. Step outside to a private, courtyard-style backyard designed for easy maintenance and tropical living. This secluded oasis features a summer kitchen, outdoor TV, greenhouse, and lush landscaping that creates a peaceful retreat. The enclosed former carport now serves as a spacious.
Exterior Features
Courtyard, Outdoor Kitchen
Interior Features
Breakfast Bar, Ceiling Fan(s), Kitchen Island, Open Floorplan, Primary Bathroom - Shower No Tub, Split Bedrooms, Walk-In Closet(s)
Equipment / Appliances
Dishwasher, Electric Water Heater, Gas Oven, Gas Range, Gas Water Heater, Ice Maker, Microwave, Refrigerator
Street
Highland Avenue
County
Brevard
Listing Status
Active
Floor
Tile, Wood
Tax Year
2025
Pool
No
Private Pool
No
Utilities
Electricity Connected, Natural Gas Connected, Water Connected
Waterfront
No
ZipCode
Subdivision
Sunny Point Subd
Construction
Block, Frame, Wood Siding
Roof Type
Metal
Tax Amount
$5,618.52
Furnishings
Unfurnished
Parking
Other
HOA Dues
$0.00
1280 Highland AvenueMelbourne, FL 32935
This listing is courtesy of Arium Real Estate, LLC.

Real Estate and Luxury homes in Melbourne Beach, Merritt Island, Cocoa Beach, Lansing Island, Tortoise Island, Vero Beach, Barefoot Bay, Cape Canaveral, Cocoa, Grant Valkaria, Indialantic, Indian Harbour Beach, Malabar, Melbourne, Palm Bay, Rockledge, Satellite Beach, Titusville, West Melbourne and surrounding areas in Brevard and Central Florida.
Property Listing Data contained within this site is the property of Brevard MLS and is provided for consumers looking to purchase real estate. Any other use is prohibited. We are not responsible for errors and omissions on this web site. All information contained herein should be deemed reliable but not guaranteed, all representations are approximate, and individual verification is recommended.