165 Heron Drive
Melbourne Beach, FL 32951
MLS #: 1071612
Property Type: Residential
Beds: 4
Full Baths: 2.00
List Date: 03-11-2026
Year Built: 1976
2,174 Sq. Ft.
Zoning: Residential
Property Description
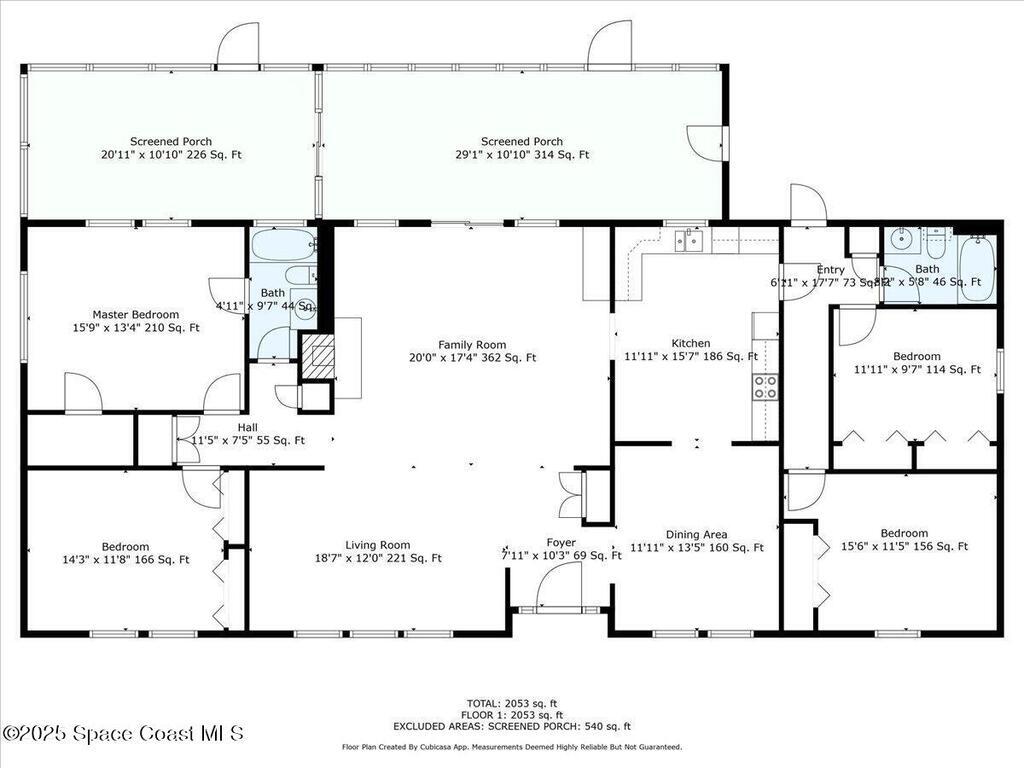
Discover this spacious 4-bedroom, 2-bathroom home in the highly sought-after community of Melbourne Shores. Just a short walk from both the ocean and the river, this property is perfect for those who enjoy the beach lifestyle and spending time outdoors. Set on a beautifully maintained 0.4-acre lot, there is plenty of space to add a pool, create outdoor entertainment areas, and park an RV or boat. Inside, the home features an expansive great room with a fireplace and two back porches, one is enclosed with air conditioning and the other is screened. Lovingly cared for by the same owner for over 30 years, this home offers a solid foundation and is ready for your cosmetic updates. The voluntary HOA is just $150 per year and includes access to a riverfront park with fishing pier, boat racks, picnic area, playground, and deeded ocean access with beach pavilion and parking. With nearby nature preserves and a peaceful neighborhood setting, this home offers amazing coastal Florida living!
Exterior Features
Outdoor Shower
Interior Features
Ceiling Fan(s), Eat-in Kitchen, Guest Suite, Open Floorplan, Primary Downstairs, Skylight(s), Split Bedrooms
Equipment / Appliances
Dishwasher, Dryer, Electric Cooktop, Electric Oven, Electric Range, Electric Water Heater, Microwave, Refrigerator, Washer
Street
Heron Drive
County
Brevard
Listing Status
Active
Home Style
Ranch
Floor
Carpet, Tile, Vinyl
Tax Year
2025
Pool
No
Private Pool
No
Utilities
Cable Available, Electricity Connected, Water Connected
Waterfront
No
ZipCode
Subdivision
Melbourne Shores 1st Addn
Construction
Frame
Roof Type
Shingle
Tax Amount
$2,337.39
Furnishings
Unfurnished
Parking
Additional Parking, Garage, Garage Door Opener
HOA Dues
$0.00
165 Heron DriveMelbourne Beach, FL 32951
This listing is courtesy of Island Pineapple Realty, LLC.

Real Estate and Luxury homes in Melbourne Beach, Merritt Island, Cocoa Beach, Lansing Island, Tortoise Island, Vero Beach, Barefoot Bay, Cape Canaveral, Cocoa, Grant Valkaria, Indialantic, Indian Harbour Beach, Malabar, Melbourne, Palm Bay, Rockledge, Satellite Beach, Titusville, West Melbourne and surrounding areas in Brevard and Central Florida.
Property Listing Data contained within this site is the property of Brevard MLS and is provided for consumers looking to purchase real estate. Any other use is prohibited. We are not responsible for errors and omissions on this web site. All information contained herein should be deemed reliable but not guaranteed, all representations are approximate, and individual verification is recommended.