4385 Sheridan Avenue
Cocoa, FL 32926
MLS #: 1071791
Property Type: Residential
Beds: 4
Full Baths: 3.00
List Date: 03-12-2026
Year Built: 2026
2,478 Sq. Ft.
Property Description
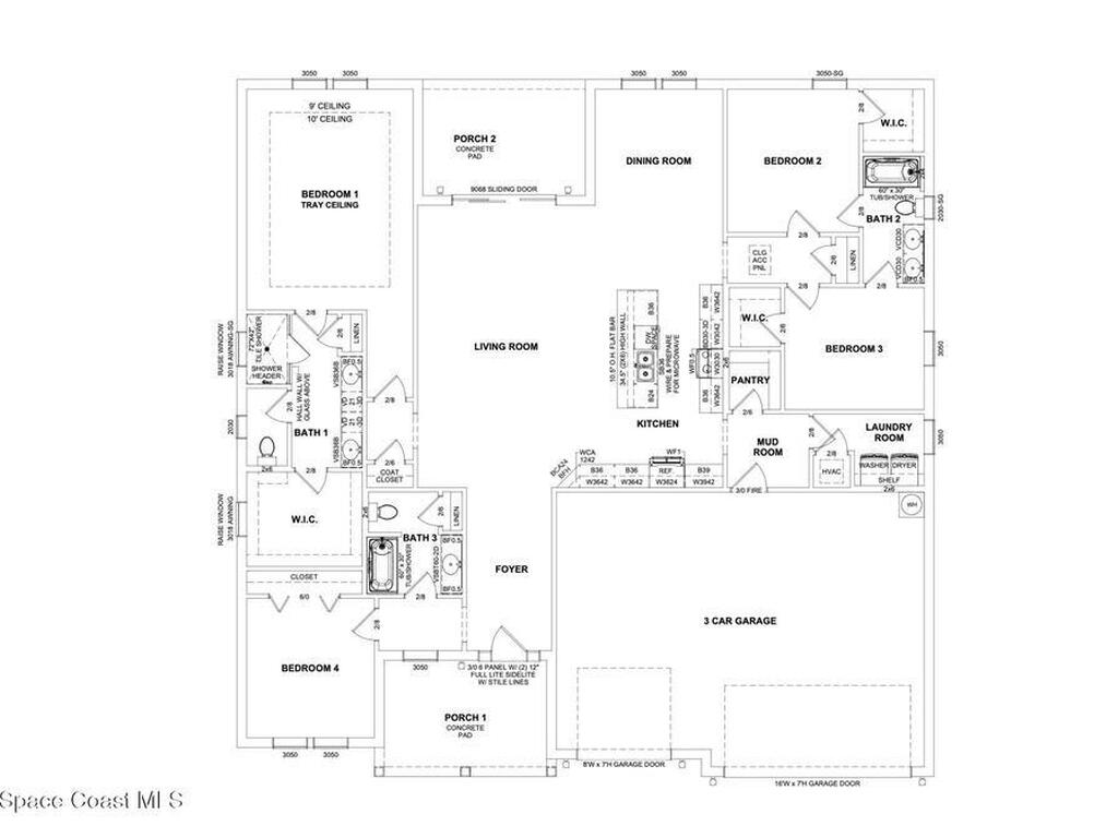
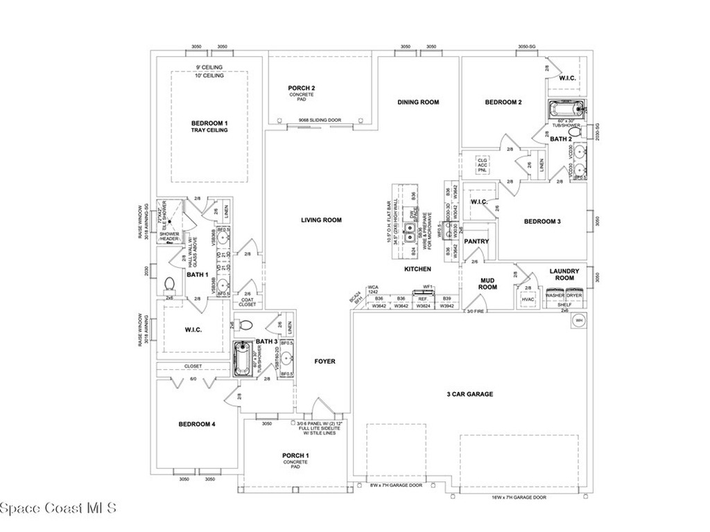
Brand new construction in the highly sought after community of Canaveral Groves with an estimated completion date of June/July 2026! This spacious home offers 4 bedrooms, 3 full bathrooms, and nearly 2, 500 square feet of living space on a full 1 acre lot with a 3 car garage. The thoughtfully designed layout features a private owner's suite with dual walk-in closets and a spa-style bath, along with a secondary suite with its own full bath, perfect for guests or multigenerational living.The open-concept design includes a large kitchen with a center island, walk-in pantry, and seamless flow into the dining and family rooms, creating an ideal space for entertaining. The covered lanai extends the living area outdoors, while a drop zone, dedicated laundry room, and oversized three car garage provide convenience and plenty of storage.Enjoy the space & privacy of a full acre while still being close to everything Brevard has to offer. Inquire today!
Interior Features
Guest Suite, Kitchen Island, Open Floorplan, Pantry, Primary Downstairs, Split Bedrooms
Equipment / Appliances
Dishwasher, Disposal, Electric Cooktop, Electric Oven, Electric Water Heater, Microwave, Refrigerator
Street
Sheridan Avenue
County
Brevard
Listing Status
Active
Floor
Vinyl
Tax Year
2025
Pool
No
Private Pool
No
Utilities
Cable Available, Electricity Available, Water Available
Waterfront
No
ZipCode
Subdivision
Canaveral Groves Replat Sec B Unit 1 Sheet 3
Construction
Block, Concrete, Stucco
Roof Type
Shingle
Tax Amount
$608.72
Furnishings
Unfurnished
Parking
Attached, Garage, On Street
HOA Dues
$0.00
PDF Downloads
4385 Sheridan AvenueCocoa, FL 32926
This listing is courtesy of RE/MAX Elite.

Real Estate and Luxury homes in Melbourne Beach, Merritt Island, Cocoa Beach, Lansing Island, Tortoise Island, Vero Beach, Barefoot Bay, Cape Canaveral, Cocoa, Grant Valkaria, Indialantic, Indian Harbour Beach, Malabar, Melbourne, Palm Bay, Rockledge, Satellite Beach, Titusville, West Melbourne and surrounding areas in Brevard and Central Florida.
Property Listing Data contained within this site is the property of Brevard MLS and is provided for consumers looking to purchase real estate. Any other use is prohibited. We are not responsible for errors and omissions on this web site. All information contained herein should be deemed reliable but not guaranteed, all representations are approximate, and individual verification is recommended.