2245 Chevalier Place
Merritt Island, FL 32952
MLS #: 1071883
Property Type: Residential
Beds: 3
Full Baths: 2.00
List Date: 03-13-2026
Year Built: 1983
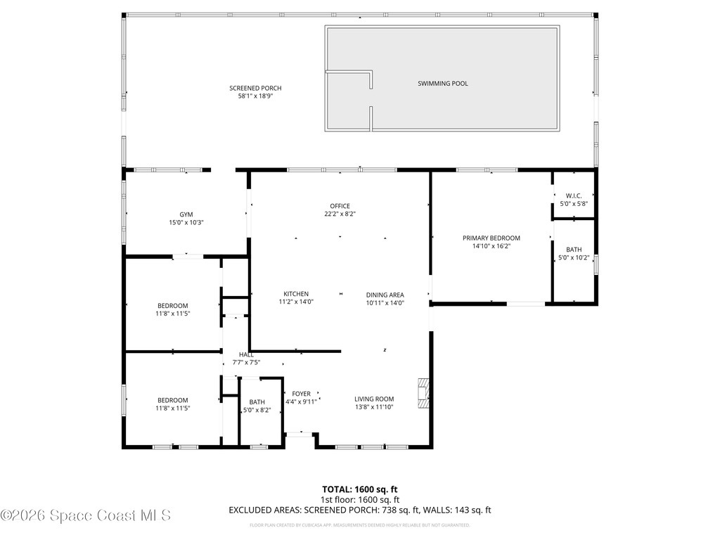
1,700 Sq. Ft.
Zoning: Residential
Property Description
Paradise Found! Bring your boat, as this large, updated 3/2 ranch house with a beautiful open concept sits beside a wide canal leading out to the Banana River and Atlantic Ocean with a newer vinyl seawall!!! Relax or wind down in the screened patio and pool in comfort, watching manatees, dolphins, and Florida's tropical fauna just beyond the sea wall. Beautifully landscaped and private with a secluded feel yet nestled in the heart of Brevard's most popular dining, near the port, a close-up view of historic rocket launches from the front or back yard, clean beaches, and shopping all less than 10 minutes away.
Exterior Features
Dock, Impact Windows, Storm Shutters
Interior Features
Breakfast Bar, Ceiling Fan(s), Eat-in Kitchen, Entrance Foyer, His and Hers Closets, Kitchen Island, Open Floorplan, Primary Bathroom - Shower No Tub, Smart Thermostat, Walk-In Closet(s)
Equipment / Appliances
Convection Oven, Dishwasher, Disposal, Dryer, Electric Range, Electric Water Heater, Microwave, Other, Refrigerator, Washer
Street
Chevalier Place
County
Brevard
Listing Status
Active
Home Style
Other
Floor
Tile, Vinyl
Tax Year
2025
Pool
Yes
Private Pool
Yes
Pool Description
Electric Heat, Heated, In Ground, Pool Sweep, Salt Water, Screen Enclosure, Solar Heat, Waterfall
Utilities
Cable Connected, Electricity Connected, Sewer Connected, Water Connected
Waterfront
Yes
Water Type
ZipCode
Subdivision
Ridge Manor Estates
Construction
Block, Frame, Stone, Vinyl Siding
Roof Type
Shingle
Tax Amount
$4,290.74
Furnishings
Unfurnished
Home View
Canal, Pool, Water
Parking
Additional Parking, Attached, Garage, Garage Door Opener, On Street
HOA Dues
$0.00
PDF Downloads
2245 Chevalier PlaceMerritt Island, FL 32952
This listing is courtesy of Space Coast Realty & Inv. LLC.

Real Estate and Luxury homes in Melbourne Beach, Merritt Island, Cocoa Beach, Lansing Island, Tortoise Island, Vero Beach, Barefoot Bay, Cape Canaveral, Cocoa, Grant Valkaria, Indialantic, Indian Harbour Beach, Malabar, Melbourne, Palm Bay, Rockledge, Satellite Beach, Titusville, West Melbourne and surrounding areas in Brevard and Central Florida.
Property Listing Data contained within this site is the property of Brevard MLS and is provided for consumers looking to purchase real estate. Any other use is prohibited. We are not responsible for errors and omissions on this web site. All information contained herein should be deemed reliable but not guaranteed, all representations are approximate, and individual verification is recommended.