7628 Boxelder Road
Micco, FL 32976
MLS #: 1072393
Property Type: Residential
Beds: 3
Full Baths: 2.00
List Date: 03-19-2026
Year Built: 2004
1,620 Sq. Ft.
Property Description
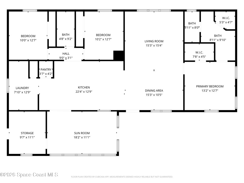
Florida living with a community vibe! Whether you are looking for a vacation home or year-round, this beautifully maintained 3-bed, 2-full bath home in Snug Harbor Lakes is ready to welcome you. Split 1, 620 sq ft plan offers newer metal roof, new HWH, updated flooring, vaulted ceilings, modern kitchen cabinetry, kitchen island with spacious dining area and separate laundry room with washer (new) and dryer included. Primary suite features walk-in closet, spacious primary bath with walk-in shower, private water closet, and separate dual vanities. Additional features include new strappings on carport, freshly painted double wide driveway, storage shed with electricity and Florida room with air and heat. Your Florida lifestyle is calling. Don't miss this opportunity! Come see what makes this home special and imagine the next chapter beginning here.
Exterior Features
Storm Shutters
Interior Features
Ceiling Fan(s), Kitchen Island, Primary Bathroom - Shower No Tub, Skylight(s), Split Bedrooms, Vaulted Ceiling(s), Walk-In Closet(s)
Equipment / Appliances
Dishwasher, Disposal, Dryer, Electric Range, Microwave, Refrigerator, Washer
Street
Boxelder Road
County
Brevard
Listing Status
Active
Floor
Carpet, Vinyl
Tax Year
2025
Pool
No
Private Pool
No
Utilities
Electricity Connected, Sewer Connected, Water Connected
Waterfront
No
ZipCode
Subdivision
Snug Harbor Lakes Condo
Construction
Aluminum Siding, Frame, Vinyl Siding
Roof Type
Metal
Tax Amount
$1,678.80
Furnishings
Unfurnished
Parking
Attached Carport, Covered
HOA Dues
$0.00
7628 Boxelder RoadMicco, FL 32976
This listing is courtesy of RE/MAX Aerospace Realty.

Real Estate and Luxury homes in Melbourne Beach, Merritt Island, Cocoa Beach, Lansing Island, Tortoise Island, Vero Beach, Barefoot Bay, Cape Canaveral, Cocoa, Grant Valkaria, Indialantic, Indian Harbour Beach, Malabar, Melbourne, Palm Bay, Rockledge, Satellite Beach, Titusville, West Melbourne and surrounding areas in Brevard and Central Florida.
Property Listing Data contained within this site is the property of Brevard MLS and is provided for consumers looking to purchase real estate. Any other use is prohibited. We are not responsible for errors and omissions on this web site. All information contained herein should be deemed reliable but not guaranteed, all representations are approximate, and individual verification is recommended.