1427 Barefoot Circle
Barefoot Bay, FL 32976
MLS #: 1072425
Property Type: Residential
Beds: 2
Full Baths: 2.00
List Date: 03-19-2026
Year Built: 1980
1,104 Sq. Ft.
Property Description
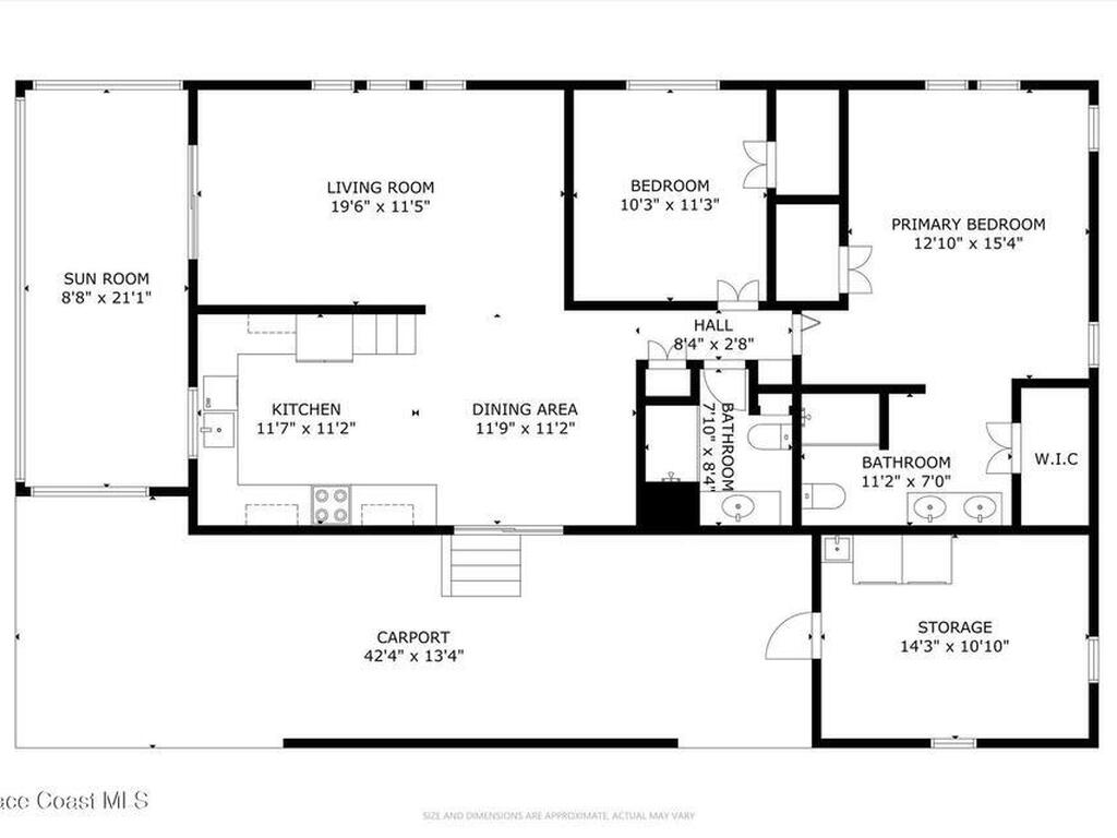
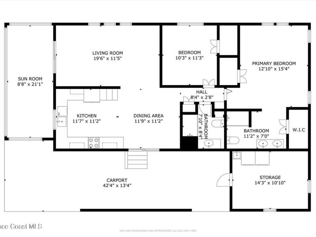
Come see this magnificently updated 2BR/2BA home in the heart of amenity-rich Barefoot Bay, near the golf course and just a short walk to one of three pools! The double driveway and carport lead to a private patio area. Step inside to a fully remodeled interior, featuring an 11x12 kitchen with all matching Samsung stainless steel appliances, deep sink, and ample counter space for all those culinary wizards. An open dining area flows into a spacious living room and enclosed sunroom, complete with AC and sliding windows--perfect for relaxing or entertaining. Both bathrooms are beautifully renovated and boast glass-tiled walk-in showers. Additional upgrades and improvements include an impact sliding door, double-pane windows, Hardie-board siding at the enclosed sunroom, plywood subfloors, insulated and drywalled interior walls, PEX water supply lines, vapor barrier, Roof 2018, AC 2019, and the list goes on...With the included storage room or workspace, this is truly a move-in ready home!
Interior Features
Ceiling Fan(s), Primary Bathroom - Shower No Tub
Equipment / Appliances
Dishwasher, Double Oven, Dryer, Electric Oven, Electric Range, Electric Water Heater, Microwave, Refrigerator, Washer
Street
Barefoot Circle
County
Brevard
Listing Status
Active
Floor
Laminate, Tile, Vinyl
Tax Year
2025
Pool
No
Private Pool
No
Utilities
Cable Connected, Electricity Connected, Sewer Connected, Water Connected
Waterfront
No
ZipCode
Subdivision
Barefoot Bay Unit 2 Part 10
Construction
Aluminum Siding
Roof Type
Shingle
Tax Amount
$2,591.64
Furnishings
Negotiable
Parking
Attached Carport
HOA Dues
$0.00
1427 Barefoot CircleBarefoot Bay, FL 32976
This listing is courtesy of LoKation.

Real Estate and Luxury homes in Melbourne Beach, Merritt Island, Cocoa Beach, Lansing Island, Tortoise Island, Vero Beach, Barefoot Bay, Cape Canaveral, Cocoa, Grant Valkaria, Indialantic, Indian Harbour Beach, Malabar, Melbourne, Palm Bay, Rockledge, Satellite Beach, Titusville, West Melbourne and surrounding areas in Brevard and Central Florida.
Property Listing Data contained within this site is the property of Brevard MLS and is provided for consumers looking to purchase real estate. Any other use is prohibited. We are not responsible for errors and omissions on this web site. All information contained herein should be deemed reliable but not guaranteed, all representations are approximate, and individual verification is recommended.