1923 Jimmy Buffett Memorial Highway #C-3
Indian Harbour Beach, FL 32937
MLS #: 1072458
Property Type: Residential
Beds: 3
Full Baths: 3.00
List Date: 03-20-2026
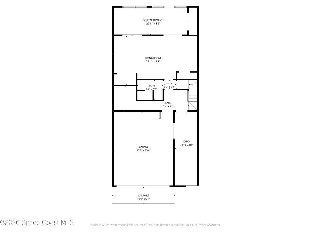
Year Built: 1980
2,400 Sq. Ft.
Zoning: Condominium
Property Description
Immaculate 3/3 2-story oceanfront condo with 2-car, *attached* garage, *no pet restrictions*, paver, covered entry and oceanfront patio. Ocean views from balcony, kitchen, dining, family and Florida rooms, as well as 1st floor bedroom.The automatic storm shutters are both manually and electronically employed, depending on situation and the generator and/or power block (both convey) can be used to power them. A/C (2021) has a dedicated surge protector (2024) and condenser coils replaced (2025) Hot water heater (2022) Metal roof (2017). First floor is perfect as an in-law and/or guest suite w/ mini kitchen and laundry. The main kitchen has induction stove (2026) and microwave/airfryer (2025). Beautiful, richly colored porcelain tile throughout the entire unit. Spacious primary bedroom suite with his & hers closets. 23X8 ft Florida Room with expansive ocean views through the hurricane rated windows, as well as paver patio to enjoy fire lit nights, listening to the waves on the shore.
Exterior Features
Balcony, Impact Windows, Storm Shutters
Interior Features
Ceiling Fan(s), Entrance Foyer, His and Hers Closets, Primary Bathroom - Tub with Shower, Walk-In Closet(s)
Equipment / Appliances
Convection Oven, Dishwasher, Disposal, Dryer, Electric Oven, Electric Water Heater, Freezer, Induction Cooktop, Microwave, Other, Refrigerator, Washer, Washer/Dryer Stacked
Street
Jimmy Buffett Memorial Highway
County
Brevard
Listing Status
Active
Home Style
Other
Floor
Tile
Tax Year
2025
Pool
No
Private Pool
No
Utilities
Sewer Connected, Water Connected
Additional Rooms
Bedroom 2, Bedroom 3, Dining Room, Family Room, Florida Room, Kitchen, Living Room, Primary Bedroom
Waterfront
Yes
Water Type
ZipCode
Subdivision
Ocean Dunes Subd
Construction
Concrete
Roof Type
Metal
Tax Amount
$6,681.71
Fireplace
Electric, Free Standing
Furnishings
Negotiable
Home View
Beach, Ocean
Parking
Attached, Garage, Garage Door Opener
HOA Dues
$0.00
PDF Downloads
1923 Jimmy Buffett Memorial Highway #C-3Indian Harbour Beach, FL 32937
This listing is courtesy of BHHS Florida Realty.

Real Estate and Luxury homes in Melbourne Beach, Merritt Island, Cocoa Beach, Lansing Island, Tortoise Island, Vero Beach, Barefoot Bay, Cape Canaveral, Cocoa, Grant Valkaria, Indialantic, Indian Harbour Beach, Malabar, Melbourne, Palm Bay, Rockledge, Satellite Beach, Titusville, West Melbourne and surrounding areas in Brevard and Central Florida.
Property Listing Data contained within this site is the property of Brevard MLS and is provided for consumers looking to purchase real estate. Any other use is prohibited. We are not responsible for errors and omissions on this web site. All information contained herein should be deemed reliable but not guaranteed, all representations are approximate, and individual verification is recommended.