4575 Curtis Boulevard
Cocoa, FL 32927
MLS #: 1072535
Property Type: Residential
Beds: 3
Full Baths: 2.00
List Date: 03-20-2026
Year Built: 2003
1,722 Sq. Ft.
Property Description
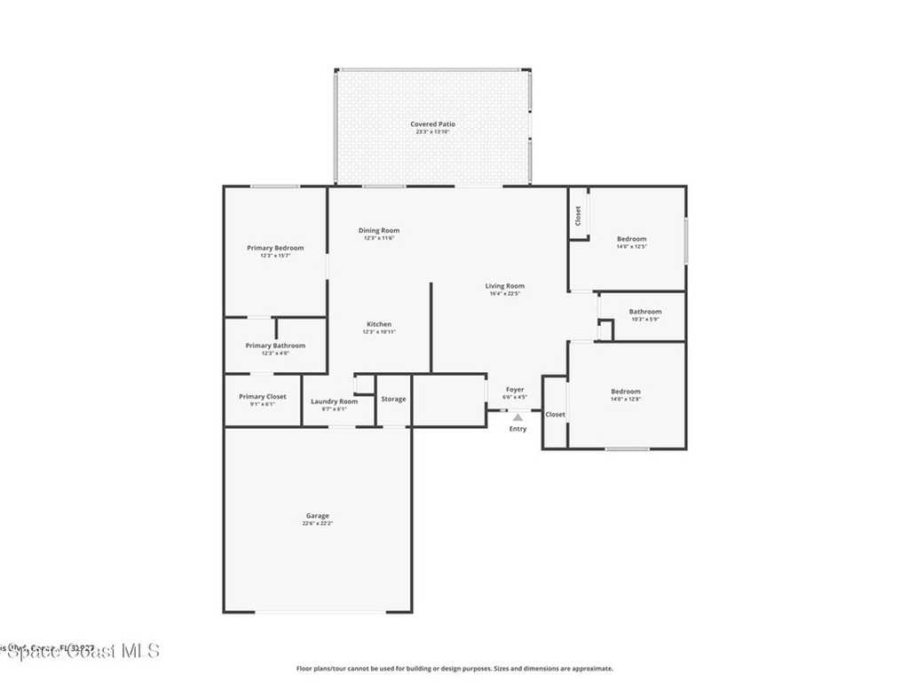
Welcome to this beautifully maintained home in desirable Port St. John! Featuring a spacious open floor plan, this property offers both comfort and functionality, perfect for everyday living and entertaining. The interior boasts stylish Pergo flooring throughout the main living areas and bedrooms, with durable tile in the bathrooms for easy maintenance. Major updates provide peace of mind, including a 2018 roof, 2025 air conditioning system, a 2023 water heater, and impact windows throughout the entire home for added security and energy efficiency. Step outside to enjoy the large, covered patio overlooking a fully fenced backyard with plenty of space for pets or play. Irrigation is controlled by a well system to keep those water bills low. An extended driveway continues into the side yard, offering ample room to park boats, trailers, or recreational vehicles. This home combines modern updates, thoughtful features, and outdoor versatility in a convenient location.
Exterior Features
Impact Windows
Interior Features
Breakfast Bar, Ceiling Fan(s), Open Floorplan, Split Bedrooms
Equipment / Appliances
Dishwasher, Dryer, Electric Range, Microwave, Refrigerator, Washer
Street
Curtis Boulevard
County
Brevard
Listing Status
Active
Home Style
Traditional
Floor
Laminate, Tile
Tax Year
2025
Pool
No
Private Pool
No
Utilities
Cable Available, Electricity Available, Electricity Connected, Water Available, Water Connected
Waterfront
No
ZipCode
Subdivision
Port St John Unit 8
Construction
Block, Stucco
Roof Type
Shingle
Tax Amount
$2,994.61
Furnishings
Unfurnished
Parking
Additional Parking, Garage, Garage Door Opener
HOA Dues
$0.00
4575 Curtis BoulevardCocoa, FL 32927
This listing is courtesy of Ellingson Properties.

Real Estate and Luxury homes in Melbourne Beach, Merritt Island, Cocoa Beach, Lansing Island, Tortoise Island, Vero Beach, Barefoot Bay, Cape Canaveral, Cocoa, Grant Valkaria, Indialantic, Indian Harbour Beach, Malabar, Melbourne, Palm Bay, Rockledge, Satellite Beach, Titusville, West Melbourne and surrounding areas in Brevard and Central Florida.
Property Listing Data contained within this site is the property of Brevard MLS and is provided for consumers looking to purchase real estate. Any other use is prohibited. We are not responsible for errors and omissions on this web site. All information contained herein should be deemed reliable but not guaranteed, all representations are approximate, and individual verification is recommended.