2460 San Lorenzo Court
Merritt Island, FL 32953
MLS #: 1072610
Property Type: Residential
Beds: 3
Full Baths: 2.00
List Date: 03-21-2026
Year Built: 1969
1,461 Sq. Ft.
Property Description
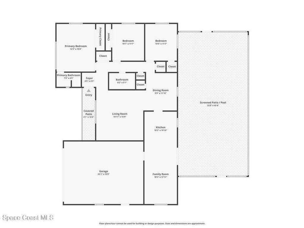
Situated on a quiet cul-de-sac in Villa De Palmas, this well-maintained 3 bed, 2 bath pool home rests on an inviting corner lot and offers an easy, well-designed Florida lifestyle. Inside, tile flooring runs throughout, complemented by fresh interior paint & a bright, open layout. The kitchen features brand new stainless steel appliances, updated countertops, & a window overlooking the screened pool & lanai. Both the primary & guest bathrooms have been remodeled w/ clean, modern finishes. Outdoor living includes a screened pool w/ a resurfaced deck, a newly sodded & fenced backyard, & an updated sprinkler system on an artesian well. Improvements include double-pane windows, hurricane shutters, a 2022 Lennox A/C system, & and a BRAND NEW roof. An oversized two-car garage w/ new Shark Coating finish, a detached workshop, & gated boat or RV parking add flexibility. Conveniently located near schools, shopping, beaches, & major roadways with easy access to the Space Center and Orlando.
Exterior Features
Storm Shutters
Interior Features
Open Floorplan, Primary Bathroom - Shower No Tub
Equipment / Appliances
Dishwasher, Disposal, Dryer, Electric Range, Electric Water Heater, Microwave, Refrigerator, Washer
Street
San Lorenzo Court
County
Brevard
Listing Status
Active
Floor
Tile
Pool
Yes
Private Pool
Yes
Pool Description
In Ground, Screen Enclosure
Utilities
Cable Available, Electricity Connected, Sewer Connected, Water Connected
Waterfront
No
ZipCode
Subdivision
Villa De Palmas Unit 1
Construction
Block, Concrete
Roof Type
Shingle
Tax Amount
$0.00
Furnishings
Unfurnished
Parking
Attached, Detached, Garage, Garage Door Opener
HOA Dues
$0.00
2460 San Lorenzo CourtMerritt Island, FL 32953
This listing is courtesy of Compass Florida, LLC.

Real Estate and Luxury homes in Melbourne Beach, Merritt Island, Cocoa Beach, Lansing Island, Tortoise Island, Vero Beach, Barefoot Bay, Cape Canaveral, Cocoa, Grant Valkaria, Indialantic, Indian Harbour Beach, Malabar, Melbourne, Palm Bay, Rockledge, Satellite Beach, Titusville, West Melbourne and surrounding areas in Brevard and Central Florida.
Property Listing Data contained within this site is the property of Brevard MLS and is provided for consumers looking to purchase real estate. Any other use is prohibited. We are not responsible for errors and omissions on this web site. All information contained herein should be deemed reliable but not guaranteed, all representations are approximate, and individual verification is recommended.