7486 Livingstone Lane
Melbourne, FL 32904
MLS #: 1072662
Property Type: Residential
Beds: 4
Full Baths: 2.00
List Date: 03-23-2026
Year Built: 1959
1,805 Sq. Ft.
Zoning: Residential
Property Description
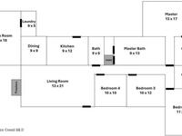
Fully Renovated POOL Home situated on a Rare 0.68-Acre Lot at the end of a Quiet street in Melbourne! This move-in ready property offers the perfect blend of modern updates and space to spread out.Major system updates add peace of mind, including a NEW ROOF (2023), NEW SEPTIC (2026), and NEW PLUMBING (2026), along with a serviced HVAC system with updated ductwork.Inside, you'll find new flooring throughout, a beautifully remodeled kitchen and updated baths, along with a spacious family room ideal for everyday living and entertaining. The flexible 4-bedroom layout includes generous room sizes and large walk-in closets.Step outside to your private backyard oasis, featuring a pool and expansive deck--perfect for entertaining or relaxing. The oversized lot provides endless possibilities for gardening or future additions.Connected to city water and conveniently located near shopping, highly-rated schools, and major roadways. This home truly checks all the boxes.
Exterior Features
Fire Pit
Interior Features
Breakfast Bar, Breakfast Nook, Ceiling Fan(s), Open Floorplan, Pantry, Primary Bathroom - Shower No Tub, Walk-In Closet(s)
Equipment / Appliances
Dishwasher, Disposal, Electric Oven, Electric Range, ENERGY STAR Qualified Refrigerator, ENERGY STAR Qualified Water Heater, Ice Maker, Microwave
Street
Livingstone Lane
County
Brevard
Listing Status
Active
Home Style
Ranch
Floor
Tile, Vinyl
Tax Year
2023
Pool
Yes
Private Pool
Yes
Pool Description
In Ground
Utilities
Cable Available, Electricity Connected, Water Connected
Additional Rooms
Bedroom 2, Bedroom 3, Bedroom 4, Family Room, Kitchen, Living Room, Primary Bedroom
Waterfront
No
ZipCode
Subdivision
None
Construction
Block, Concrete, Stucco
Roof Type
Metal
Tax Amount
$3,263.88
Fireplace
Wood Burning
Furnishings
Negotiable
Home View
Pool, Trees/Woods
Parking
Circular Driveway, RV Access/Parking
HOA Dues
$0.00
7486 Livingstone LaneMelbourne, FL 32904
This listing is courtesy of Real Broker LLC.

Real Estate and Luxury homes in Melbourne Beach, Merritt Island, Cocoa Beach, Lansing Island, Tortoise Island, Vero Beach, Barefoot Bay, Cape Canaveral, Cocoa, Grant Valkaria, Indialantic, Indian Harbour Beach, Malabar, Melbourne, Palm Bay, Rockledge, Satellite Beach, Titusville, West Melbourne and surrounding areas in Brevard and Central Florida.
Property Listing Data contained within this site is the property of Brevard MLS and is provided for consumers looking to purchase real estate. Any other use is prohibited. We are not responsible for errors and omissions on this web site. All information contained herein should be deemed reliable but not guaranteed, all representations are approximate, and individual verification is recommended.