1390 Mackeral Avenue
Merritt Island, FL 32952
MLS #: 1073254
Property Type: Residential
Beds: 3
Full Baths: 3.00
Half Baths: 1
List Date: 03-30-2026
Year Built: 1963
1,611 Sq. Ft.
Property Description
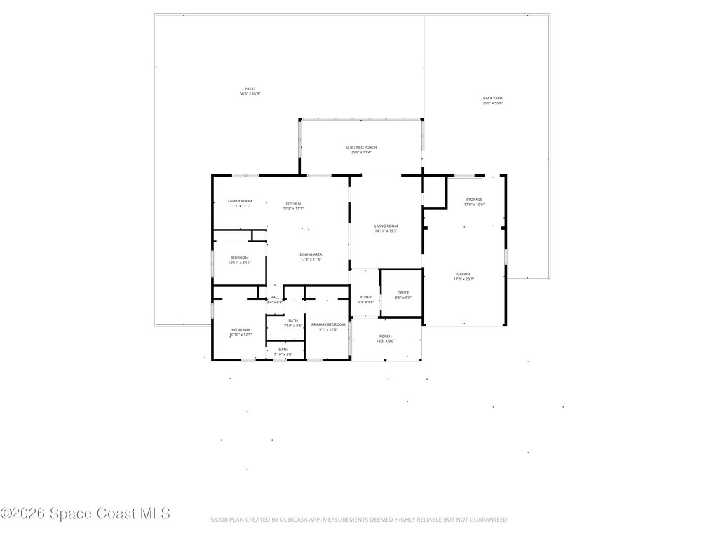
Spacious Three-Bedroom Residence is nestled in the rear section of the Surfside neighborhood. This comfortable 3 bedroom 2 1/2 bath home provides a peaceful retreat away from the main entrance. Includes paver driveway and 2 car attached garage. The property is thoughtfully designed to offer both privacy and convenience. The formal living room welcomes you upon entry, creating a refined space for relaxation or entertaining guests. Adjacent to the living room, you will find a large dining area that seamlessly connects to the beautifully updated kitchen. This open layout is perfect for hosting family gatherings and entertaining friends, ensuring everyone feels included and comfortable. Family Room is located beside the kitchen; it serves as a versatile space and is currently used as a play area for children. Its proximity to the kitchen allows for easy supervision and interaction. Enjoy outdoors on the expansive screen patio. Come take a look today!
Interior Features
Breakfast Bar, Ceiling Fan(s), Entrance Foyer, Kitchen Island, Open Floorplan, Primary Bathroom - Shower No Tub, Primary Downstairs, Skylight(s)
Equipment / Appliances
Dishwasher, Gas Range, Gas Water Heater, Microwave, Refrigerator
Street
Mackeral Avenue
County
Brevard
Listing Status
Active
Home Style
Ranch
Floor
Tile, Vinyl
Tax Year
2025
Pool
No
Private Pool
No
Utilities
Cable Available, Electricity Connected, Natural Gas Connected, Sewer Connected, Water Connected
Waterfront
No
ZipCode
Subdivision
Surfside Estates Unit 2
Construction
Concrete
Roof Type
Shingle
Tax Amount
$3,584.83
Furnishings
Unfurnished
Parking
Attached, Garage, Off Street
HOA Dues
$0.00
1390 Mackeral AvenueMerritt Island, FL 32952
This listing is courtesy of Reef Realty Florida LLC.

Real Estate and Luxury homes in Melbourne Beach, Merritt Island, Cocoa Beach, Lansing Island, Tortoise Island, Vero Beach, Barefoot Bay, Cape Canaveral, Cocoa, Grant Valkaria, Indialantic, Indian Harbour Beach, Malabar, Melbourne, Palm Bay, Rockledge, Satellite Beach, Titusville, West Melbourne and surrounding areas in Brevard and Central Florida.
Property Listing Data contained within this site is the property of Brevard MLS and is provided for consumers looking to purchase real estate. Any other use is prohibited. We are not responsible for errors and omissions on this web site. All information contained herein should be deemed reliable but not guaranteed, all representations are approximate, and individual verification is recommended.