503 Andrews Drive
Melbourne Beach, FL 32951
MLS #: 1073581
Property Type: Residential
Beds: 4
Full Baths: 2.00
List Date: 04-02-2026
Year Built: 1974
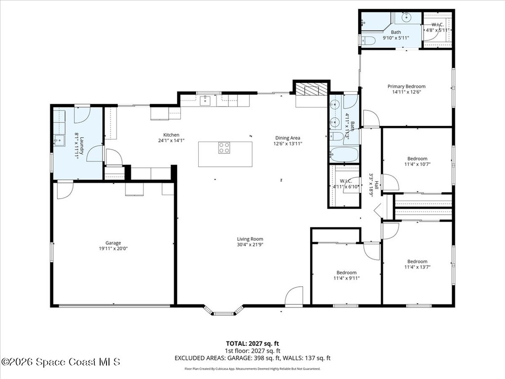
2,020 Sq. Ft.
Property Description
Beautifully updated, 4 bed, concrete block, pool home in the heart of Melbourne Beach, close to 3 downtown areas, beautiful white sand beaches, a community pier, playgrounds, tennis/pickleball and much more! All impact rated windows and doors, whole home water purification system, tankless water heater & many more upgrades throughout this beachside gem ! You'll love the tropical oasis created within the spacious, fully fenced backyard, highlighted by a recently resurfaced, solar heated, salt water pool, fire pit & large covered lanai. RV/Boat storage area + a shed for all the toys! Don't sleep on this winner !!
Exterior Features
Fire Pit, Impact Windows, Outdoor Shower
Interior Features
Breakfast Bar, Ceiling Fan(s), Open Floorplan, Primary Bathroom - Shower No Tub, Walk-In Closet(s)
Equipment / Appliances
Convection Oven, Dishwasher, Induction Cooktop, Microwave, Refrigerator, Tankless Water Heater
Street
Andrews Drive
County
Brevard
Listing Status
Active
Home Style
Ranch
Floor
Carpet, Tile
Tax Year
2025
Pool
Yes
Private Pool
Yes
Pool Description
Heated, In Ground, Salt Water, Solar Heat
Utilities
Cable Connected, Electricity Connected, Sewer Connected, Water Connected
Waterfront
No
ZipCode
Subdivision
River Colony East
Construction
Block, Concrete, Stucco
Roof Type
Shingle
Tax Amount
$4,350.50
Fireplace
Wood Burning
Furnishings
Negotiable
Home View
Pool
Parking
Attached, Garage, RV Access/Parking
HOA Dues
$0.00
503 Andrews DriveMelbourne Beach, FL 32951
This listing is courtesy of One Sotheby's International.

Real Estate and Luxury homes in Melbourne Beach, Merritt Island, Cocoa Beach, Lansing Island, Tortoise Island, Vero Beach, Barefoot Bay, Cape Canaveral, Cocoa, Grant Valkaria, Indialantic, Indian Harbour Beach, Malabar, Melbourne, Palm Bay, Rockledge, Satellite Beach, Titusville, West Melbourne and surrounding areas in Brevard and Central Florida.
Property Listing Data contained within this site is the property of Brevard MLS and is provided for consumers looking to purchase real estate. Any other use is prohibited. We are not responsible for errors and omissions on this web site. All information contained herein should be deemed reliable but not guaranteed, all representations are approximate, and individual verification is recommended.