476 Veracruz Boulevard
Indialantic, FL 32903
MLS #: 1073800
Property Type: Residential
Beds: 4
Full Baths: 4.00
Half Baths: 1
List Date: 04-04-2026
Year Built: 1990
2,950 Sq. Ft.
Zoning: Residential
Property Description
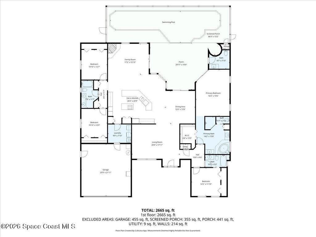
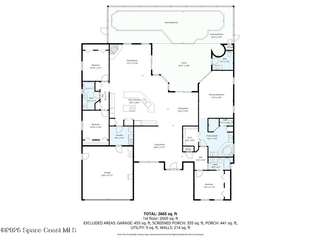
Leave the traffic, the cold, and the million-dollar price tags behind. This 4-bedroom, 3.5-bath pool home in Indialantic's prestigious Rio Villa neighborhood puts you walking distance to the beach, local restaurants, and some of Brevard County's highest-rated schools at a price point that will stop you mid-scroll.The split open floor plan was made for the way you actually live: a private primary suite with a remodeled bath and another bedroom perfect for an office or nursery on one side, 2 additional bedrooms on the other. Work from home in peace, host visiting family, or simply enjoy the Space Coast lifestyle you've been researching. The open kitchen is made for family gatherings with a large island and breakfast bar and nook. Fresh interior paint, new LVT flooring, new electrical panel, shutters, new carpet and a wood-burning fireplace mean you move in and start living, not renovating. The screened pool, oversized outdoor shower, and cabana bath were built for Florida living.
Exterior Features
Storm Shutters
Interior Features
Breakfast Bar, Ceiling Fan(s), Eat-in Kitchen, Entrance Foyer, Kitchen Island, Open Floorplan, Pantry, Split Bedrooms, Walk-In Closet(s)
Equipment / Appliances
Dishwasher, Disposal, Electric Cooktop, Electric Oven, Gas Water Heater, Refrigerator
Street
Veracruz Boulevard
County
Brevard
Listing Status
Active
Home Style
Traditional
Floor
Carpet, Vinyl
Tax Year
2025
Pool
Yes
Private Pool
Yes
Pool Description
In Ground, Other, Screen Enclosure
Utilities
Electricity Connected, Natural Gas Connected, Sewer Connected
Waterfront
No
ZipCode
Subdivision
Rio Villa N Phase II and III
Construction
Frame, Stucco
Roof Type
Shingle
Tax Amount
$4,887.24
Fireplace
Wood Burning
Furnishings
Unfurnished
Parking
Attached, Garage, Garage Door Opener, On Street
HOA Dues
$0.00
PDF Downloads
476 Veracruz BoulevardIndialantic, FL 32903
This listing is courtesy of Avanti Way Realty LLC.

Real Estate and Luxury homes in Melbourne Beach, Merritt Island, Cocoa Beach, Lansing Island, Tortoise Island, Vero Beach, Barefoot Bay, Cape Canaveral, Cocoa, Grant Valkaria, Indialantic, Indian Harbour Beach, Malabar, Melbourne, Palm Bay, Rockledge, Satellite Beach, Titusville, West Melbourne and surrounding areas in Brevard and Central Florida.
Property Listing Data contained within this site is the property of Brevard MLS and is provided for consumers looking to purchase real estate. Any other use is prohibited. We are not responsible for errors and omissions on this web site. All information contained herein should be deemed reliable but not guaranteed, all representations are approximate, and individual verification is recommended.