1335 S Carpenter Road
Titusville, FL 32796
MLS #: 1073863
Property Type: Residential
Beds: 4
Full Baths: 4.00
Half Baths: 1
List Date: 04-06-2026
Year Built: 1986
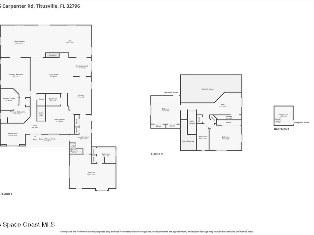
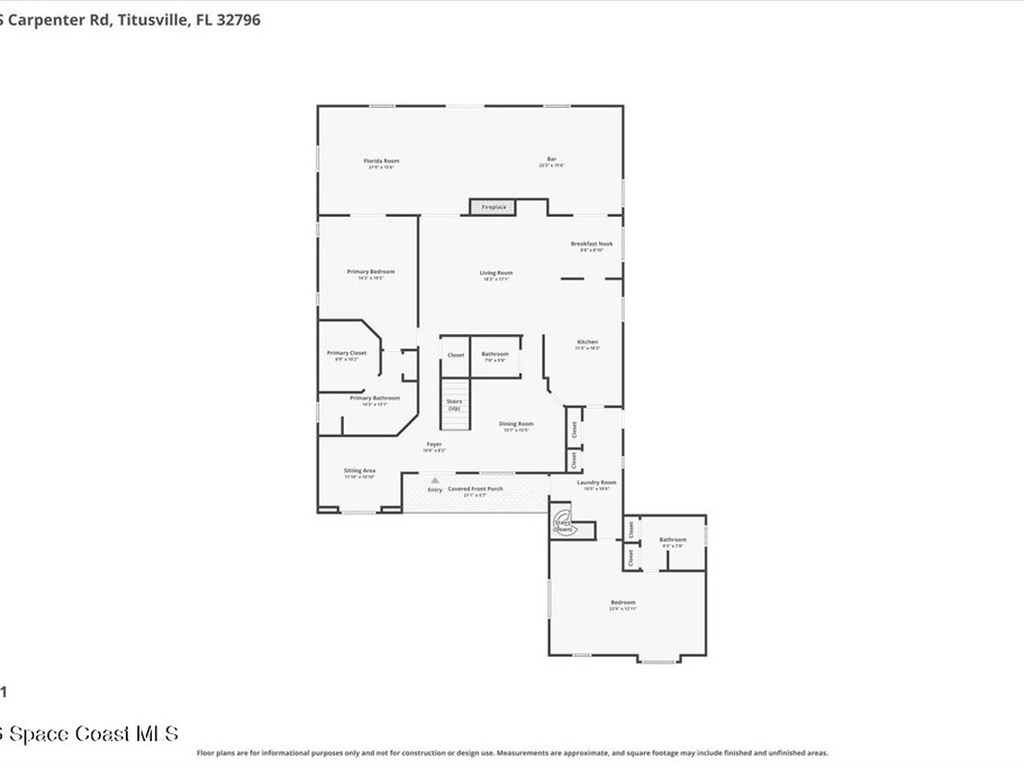
3,946 Sq. Ft.
Zoning: Residential
Property Description
Welcome to a truly special lakefront retreat offering timeless charm, generous space, and endless opportunities for entertaining. This 4-bedroom, 3.5-bath home features nearly 4, 000 sq ft, including two primary suites and a spacious 15x45 game room with beautiful lake views.Inside, you'll find rich wood details, a stunning wood-burning fireplace, and expansive living areas designed for both relaxing and gathering. The remodeled primary bath with custom closet adds comfort and functionality.Enjoy your own backyard oasis with a resurfaced pool, spa, and fully fenced yard with multiple access gates--perfect for entertaining or unwinding.Thoughtfully maintained with impact windows and front door, newer HVAC systems, water heater, and a 2011 roof with a 50-year shingle warranty. The home is on well with the option to convert to city water, and appliances convey.A rare opportunity to own a character-filled lakefront home with exceptional indoor and outdoor living.
Exterior Features
Impact Windows
Interior Features
Breakfast Bar, Breakfast Nook, Built-in Features, Ceiling Fan(s), Central Vacuum, Entrance Foyer, Pantry, Primary Bathroom - Shower No Tub, Primary Downstairs, Split Bedrooms, Vaulted Ceiling(s), Walk-In Closet(s), Wet Bar
Equipment / Appliances
Dishwasher, Dryer, Electric Range, Electric Water Heater, Freezer, Microwave, Refrigerator, Washer
Street
Carpenter Road
County
Brevard
Listing Status
Active
Home Style
Other
Floor
Carpet, Tile, Vinyl
Tax Year
2025
Pool
Yes
Private Pool
Yes
Pool Description
Fenced, In Ground
Utilities
Cable Connected, Electricity Connected, Propane, Water Available
Waterfront
Yes
Water Type
ZipCode
Subdivision
None
Construction
Brick, Frame, Stucco
Roof Type
Shingle
Tax Amount
$3,219.32
Fireplace
Wood Burning
Furnishings
Unfurnished
Home View
Lake, Trees/Woods
Parking
Attached, Circular Driveway, Garage, Garage Door Opener
HOA Dues
$0.00
PDF Downloads
1335 S Carpenter RoadTitusville, FL 32796
This listing is courtesy of Coastal Life Properties LLC.

Real Estate and Luxury homes in Melbourne Beach, Merritt Island, Cocoa Beach, Lansing Island, Tortoise Island, Vero Beach, Barefoot Bay, Cape Canaveral, Cocoa, Grant Valkaria, Indialantic, Indian Harbour Beach, Malabar, Melbourne, Palm Bay, Rockledge, Satellite Beach, Titusville, West Melbourne and surrounding areas in Brevard and Central Florida.
Property Listing Data contained within this site is the property of Brevard MLS and is provided for consumers looking to purchase real estate. Any other use is prohibited. We are not responsible for errors and omissions on this web site. All information contained herein should be deemed reliable but not guaranteed, all representations are approximate, and individual verification is recommended.