4101 Aberdeen Circle
Rockledge, FL 32955
MLS #: 1074201
Property Type: Residential
Beds: 3
Full Baths: 2.00
List Date: 04-09-2026
Year Built: 2001
1,715 Sq. Ft.
Property Description
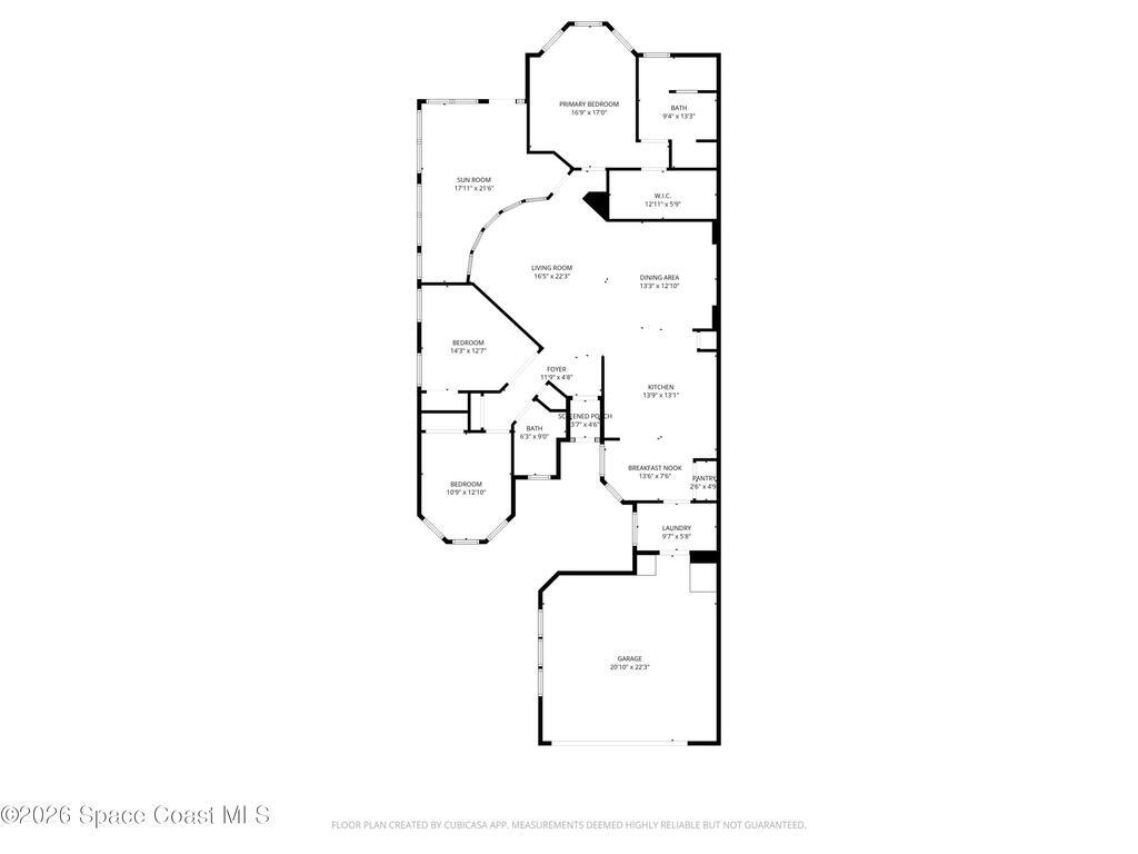
Beautifully maintained end-unit duplex offering comfort, space, and peaceful views! The oversized primary suite is a true retreat, featuring stunning pond and golf course views--perfectly positioned for scenery without the worry of stray golf balls. The primary bathroom and closet are thoughtfully designed with wheelchair accessibility.Enjoy your morning coffee on the screened front patio or relax indoors with a functional layout that includes a kitchen nook and separate formal dining area. The kitchen is a standout with a deep sink, an abundance of cabinetry, and two pantries for exceptional storage. The indoor laundry room adds convenience with built-in cabinets and a countertop, plus a new washing machine.Additional features include a gas water heater and efficient heat pump. The HOA fee covers lawn maintenance, exterior painting, roof replacement, and access to resort-style amenities including a clubhouse, fitness center, pool, spa, and tennis court!
Interior Features
Breakfast Nook, Ceiling Fan(s), Entrance Foyer, Kitchen Island, Open Floorplan, Pantry, Primary Bathroom - Shower No Tub, Primary Downstairs, Split Bedrooms, Walk-In Closet(s)
Equipment / Appliances
Dishwasher, Dryer, Electric Oven, Electric Range, Gas Water Heater, Microwave, Refrigerator, Washer
Street
Aberdeen Circle
County
Brevard
Listing Status
Active
Home Style
Half Duplex
Floor
Carpet, Tile
Tax Year
2025
Pool
No
Private Pool
No
Utilities
Cable Available, Electricity Connected, Natural Gas Connected, Sewer Connected, Water Connected
Additional Rooms
Bedroom 2, Bedroom 3, Dining Room, Kitchen, Laundry, Living Room, Other Room, Primary Bathroom, Primary Bedroom
Waterfront
No
ZipCode
Subdivision
Viera N PUD Tract B-2
Construction
Concrete, Stucco
Roof Type
Shingle
Tax Amount
$2,286.17
Furnishings
Unfurnished
Home View
Golf Course, Pond
Parking
Attached, Garage
HOA Dues
$0.00
4101 Aberdeen CircleRockledge, FL 32955
This listing is courtesy of EXP Realty, LLC.

Real Estate and Luxury homes in Melbourne Beach, Merritt Island, Cocoa Beach, Lansing Island, Tortoise Island, Vero Beach, Barefoot Bay, Cape Canaveral, Cocoa, Grant Valkaria, Indialantic, Indian Harbour Beach, Malabar, Melbourne, Palm Bay, Rockledge, Satellite Beach, Titusville, West Melbourne and surrounding areas in Brevard and Central Florida.
Property Listing Data contained within this site is the property of Brevard MLS and is provided for consumers looking to purchase real estate. Any other use is prohibited. We are not responsible for errors and omissions on this web site. All information contained herein should be deemed reliable but not guaranteed, all representations are approximate, and individual verification is recommended.