3511 Tipperary Drive
Merritt Island, FL 32953
MLS #: 1074352
Property Type: Residential
Beds: 3
Full Baths: 2.00
List Date: 04-10-2026
Year Built: 2004
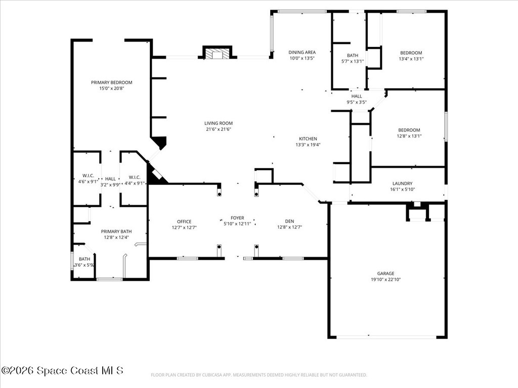
2,472 Sq. Ft.
Property Description
This is the one you've been waiting for - This well-maintained pool home in the gated community of Sunset Lakes offers a spacious layout and inviting outdoor living. The bright, open floor plan includes formal living and dining areas, along with a comfortable family room featuring a brick fireplace. The kitchen is equipped with brand new stainless steel appliances, granite countertops, a walk-in pantry, and a breakfast nook overlooking the pool and backyard. The primary suite offers dual closets, double vanities, and direct access to the screened-in pool and private fenced yard with tropical landscaping. Recent updates include a 2018 roof, 2019 HVAC, 2021 tankless water heater, 2017 impact windows, luxury waterproof flooring (2021), and a 2022 brick paver driveway. Sprinkler system with reclaimed water. Conveniently located near Kennedy Space Center, the beaches, and Cape Canaveral.
Interior Features
Breakfast Nook, Ceiling Fan(s), Eat-in Kitchen, Entrance Foyer, His and Hers Closets, Open Floorplan, Pantry, Primary Bathroom -Tub with Separate Shower, Vaulted Ceiling(s), Walk-In Closet(s)
Equipment / Appliances
Convection Oven, Dishwasher, Freezer, Gas Cooktop, Ice Maker, Microwave, Plumbed For Ice Maker, Refrigerator, Tankless Water Heater, Water Softener Owned
Street
Tipperary Drive
County
Brevard
Listing Status
Active
Home Style
Traditional
Floor
Carpet, Laminate, Tile, Wood
Tax Year
2023
Pool
Yes
Private Pool
Yes
Pool Description
Heated, In Ground, Solar Heat
Utilities
Cable Connected, Electricity Available, Electricity Connected, Sewer Connected, Water Available
Waterfront
No
ZipCode
Subdivision
Sunset Lakes PUD Phase X
Construction
Brick, Concrete
Roof Type
Shingle
Tax Amount
$4,119.52
Fireplace
Wood Burning
Furnishings
Unfurnished
Home View
Trees/Woods
Parking
Attached, Garage, Garage Door Opener
HOA Dues
$0.00
3511 Tipperary DriveMerritt Island, FL 32953
This listing is courtesy of Lokation Real Estate.

Real Estate and Luxury homes in Melbourne Beach, Merritt Island, Cocoa Beach, Lansing Island, Tortoise Island, Vero Beach, Barefoot Bay, Cape Canaveral, Cocoa, Grant Valkaria, Indialantic, Indian Harbour Beach, Malabar, Melbourne, Palm Bay, Rockledge, Satellite Beach, Titusville, West Melbourne and surrounding areas in Brevard and Central Florida.
Property Listing Data contained within this site is the property of Brevard MLS and is provided for consumers looking to purchase real estate. Any other use is prohibited. We are not responsible for errors and omissions on this web site. All information contained herein should be deemed reliable but not guaranteed, all representations are approximate, and individual verification is recommended.